Ref.
Recherche
Type
Á
Emplacement
Chambres
Salles de bain
Caractéristiques
prix

Nouvelle construction au canal avec 5 chambres- Sud (ref.2675)

Maison de Ville en vente á Empuriabrava, Girona (Empuriabrava-Norfeu)

1.290.000 €
ref. 2675
250 m2 construit
500 m2 Parcelle
 
 Chambres 5
 Salles de bain 4
 Chauffage
 Garages 1

Air conditionné
Piscine privée
Garage
Classification énergétique (D) Montrer

Projet de deux maisons nouvellement construites situées sur le canal étroit à Empuriabrava face au sud.

Localisation rapide, sortie à la mer du canal et du centre et plage accessible à pied.

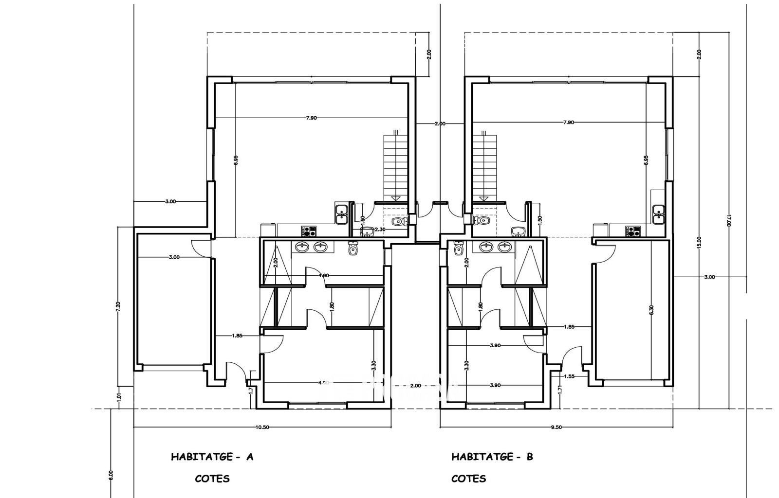
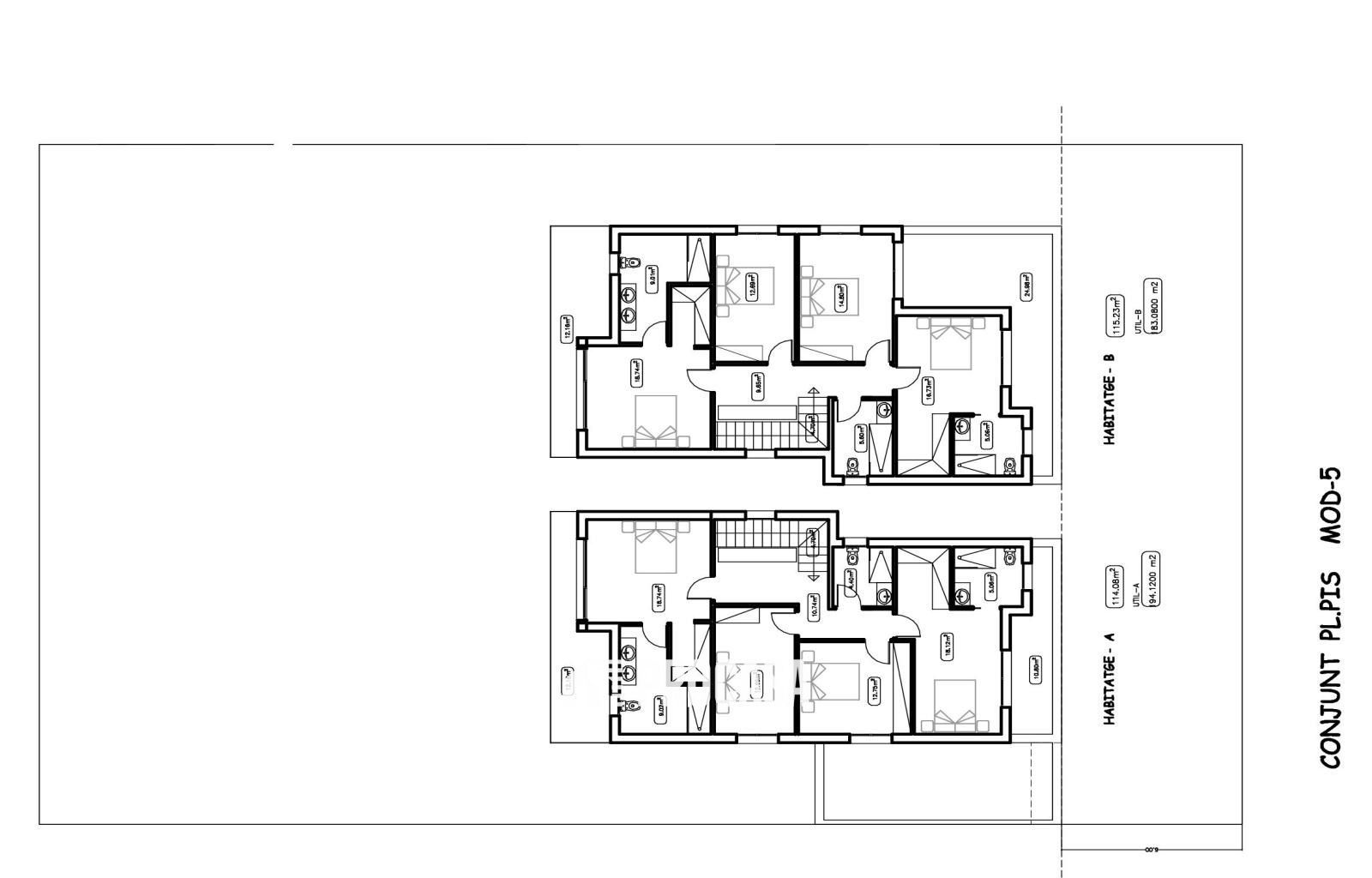
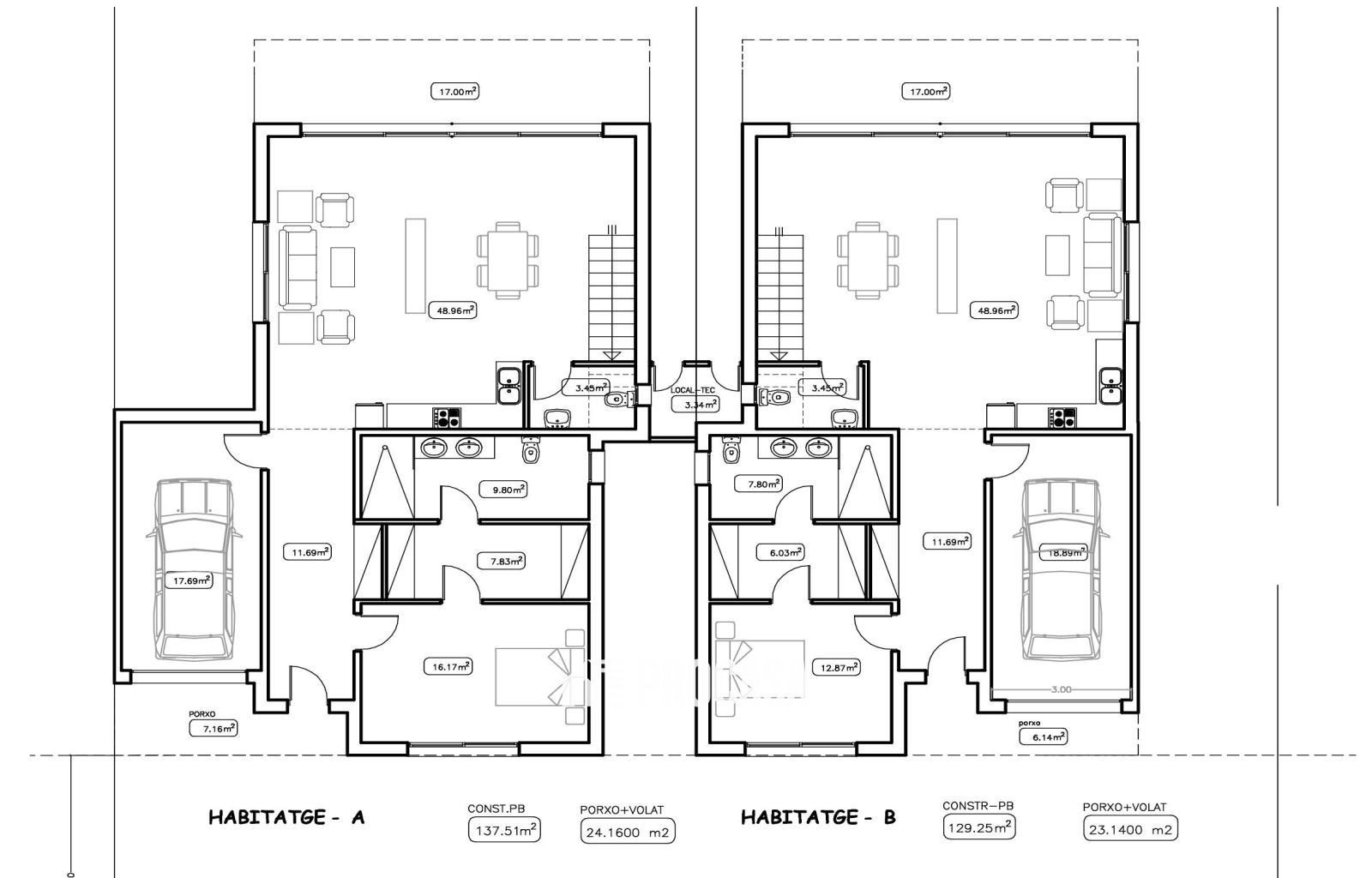
Chaque maison sera construite sur un terrain carré de 500m2 répartis au rez-de-chaussée et au premier étage. Au rez-de-chaussée il y a un grand salon-salle à manger avec une cuisine ouverte (presque 50m2), une chambre en suite avec un dressing, une salle de bain d'invités et un garage.

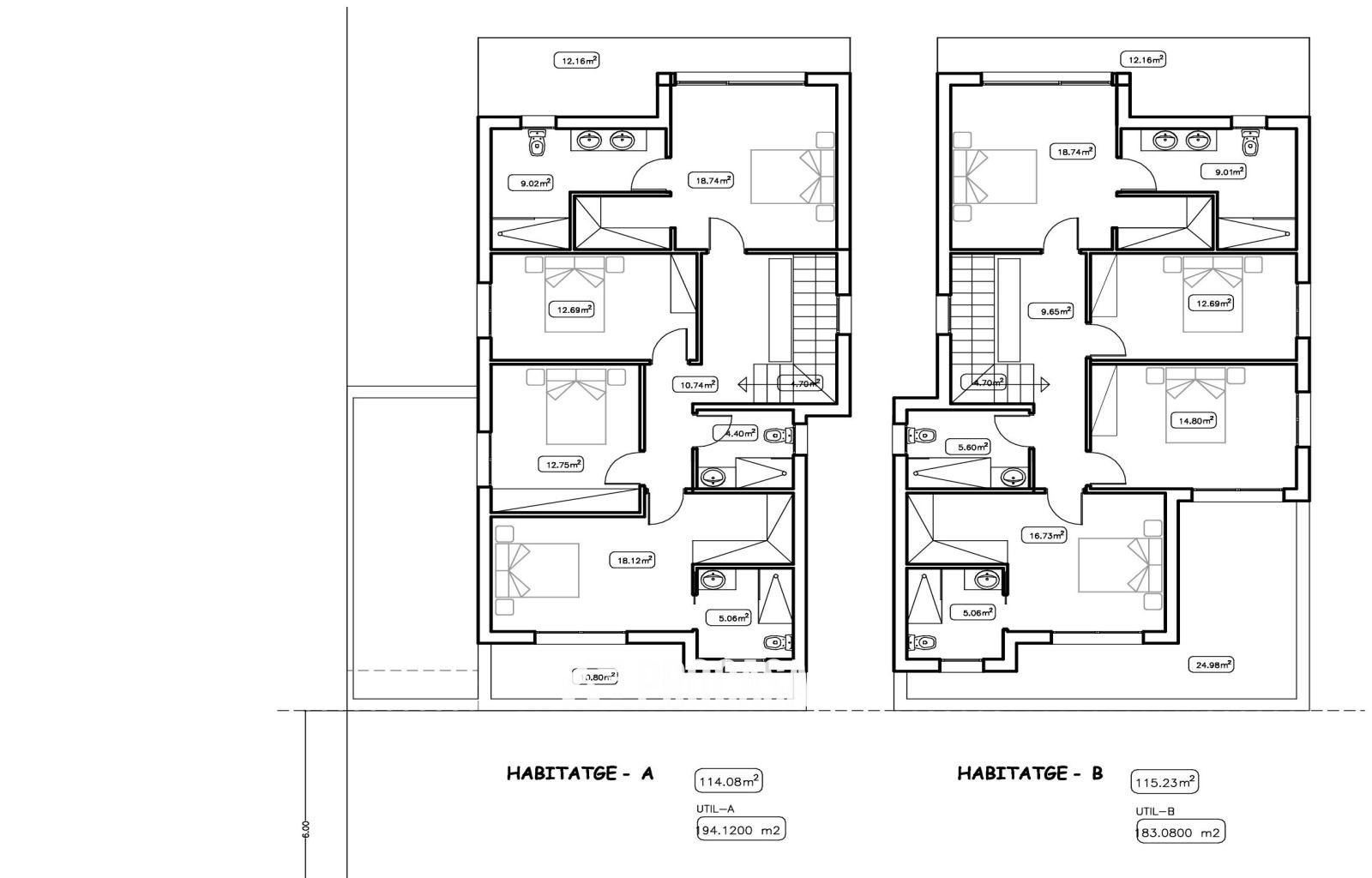
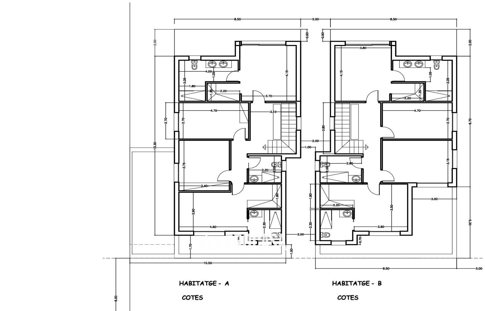
Au premier étage, nous trouverons deux grandes chambres avec leurs propres salles de bains et deux chambres doubles et une autre salle de bains et des terrasses.

L'extérieur avec piscine, espace vert et amarre de 12,5m.

La maison A a une superficie construite de 137 m2 au rez-de-chaussée et 24m2 de porche et 114m2 au premier étage. Au total mètres utiles 194m2.

La maison B a une superficie construite de 129 m2 au rez-de-chaussée et 23m2 de porche et 115m2 au premier étage. Au total mètres utiles 183m2.

L'adresse de la propriété est approximative.

Si vous voulez plus d'informations sur cette propriété, veuillez remplir le questionnaire ci-dessous: